Fermacena - Návrh a výpočet ceny IHNED

Opláštění výtahových šachet

Fermacell Vám nabízí jedinečné řešení opláštění výtahových šachet.
Hlavní přednosti systému:

  • Zatížitelnost: výtahové šachty jsou vystaveny obzvlášť vysokému mechanickému zatížení (rázové zatížení z osob nebo předmětů)
  • Charakteristické vlastnosti sádrovláknitých desek fermacell jsou definovány v Evropském technickém schválení ETA -03/0050
  • Desky ztužují ve vodorovném směru konstrukci výtahové šachty
  • Sádrovláknité desky fermacell mají zatřídění dle ČSN EN 13 501-1 A2 – s1 d0
  • Požadavky jsou doloženy Evropském technickém schválení ETA -03/0050
  • Zkouška mechanické pevnosti dle ČSN EN 81-20:2015 (Inspekční certifikát I-63-0126/16/ZZ/T)
  • Akustické zkoušky dle Evropských norem
  • Desky jsou zdravotně nezávadné, skládají se ze sádry, recyklovaných papírových vláken a vody

 
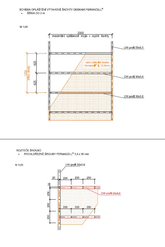
VARIANTA 1

Opláštění výtahové šachty široké do 2m.

  • hospodárné řešení s jednoduchými CW profily
VARIANTA 2

Opláštění výtahové šachty široké do 2,3m

  • hospodárné řešení se zdvojenými CW profily

Technologický postup montáže

Popis konstrukce

  • Kovová spodní konstrukce (rozteč a orientace dle požadavků)
    - Tenkostěnné profily
    - Válcované profily
  • Opláštění ze sádrovláknitých desek fermacell tl. 12,5 mm
    Možnosti spárování:
         • Lepená spára
         • Desky do profilů (např. H profily)


Upozornění: Tmelená spára není přípustná. Používejte pouze desky s kolmou hranou (nikoliv s profilovanou TB), jejichž spoje se budou lepit nebo vkládat do profilů. Spárovací tmel fermacell používejte pouze na dočištění lepené spáry a plochy desek pro další povrchovou úpravu.
 

Zpracování

Opláštění sádrovláknitými deskami fermacell

Sádrovláknité desky fermacell se připevňují na kovové profily do tloušťky plechu 0,7 mm rychlořeznými vruty fermacell bez předvrtávání.
Pro silnostěnné spodní konstrukce se používají rychlořezné vruty fermacell s vrtací špičkou.
Velká výhoda spočívá v tom,že sádrovláknité desky fermacell lze vrutovat už 10 mm od okraje desky, aniž by se odlomila hrana.
 

Lepená spára
 

Desky fermacell se k sobě lepí výhradně spárovacím lepidlem fermacell. Jen tak bude dosaženo 100% spojení desek.
Pro lepení se používají originální hrany desek. U dořezů je nutné, aby řezaná hrana byla dokonale rovná, ideálně řezaná podle vodícího pravítka. První deska fermacell se připevní na spodní konstrukci a na její hranu se z kartuše pomocí speciální špičky (je součástí lepidla) vytlačí proužek spárovacího lepidla fermacell. Poté se přitlačí druhá deska fermacell. Důležité je, aby při sražení desek lepidlo celoplošně vyplnilo spáru (lepidlo je vidět ve na spáře). Šířka spáry nesmí přesáhnout 1 mm.
 

Přiznaná spára

 

Alternativně lze spáry mezi sádrovláknitými deskami fermacell přiznat vsazením desek do ukončovacích plastových H profilů.
 

Dilatace


U montovaných svislých konstrukcí fermacell s lepenou spárou musí být dilatační spára každých 10 m.
 

Dokončení lepené spáry
 

Na závěr se spáry a vruty přetmelí spárovacím tmelem nebo plošnou sádrovou stěrkou fermacell.

DŮLEŽITÉ: Bandážování lepeného spoje provedeného dle technologických předpisů Fermacell se neprovádí.

Před montáží produktů fermacell doporučujeme absolvovat školení, kde se seznámíte s materiály fermacell a s jejich zpracováním. Na závěr obdržíte Osvědčení o absolvování školení montáže systémů fermacell v suché výstavbě. Informace o certifikačních školeních naleznete zde.

 

Typové konstrukce pro výtahové šachty - přehled všech konstrukcí pro výtahové šachty zde.

 

Konstrukce 3S11
  • Požární odolnost EI 15 DP1
  • Nosná konstrukce - CW/UW75 a větší
  • Opláštění - sádrovláknitá deska fermacell tl. 12,5 mm

Konstrukce 3S12
  • Požární odolnost EI 30 DP1 (z obou stran)
  • Nosná konstrukce - CW/UW75 a větší
  • Opláštění - sádrovláknitá deska fermacell tl. 12,5 mm + 10 mm

Konstrukce 3S21 A1
  • Požární odolnost EI 60 DP1 (z obou stran) 
  • Nosná konstrukce - CW/UW50 a větší
  • Opláštění - sádrovláknitá deska fermacell Firepanel A1 tl 2x15 mm

 


Konstrukce 3S31 A1
  • Požární odolnost EI 90 DP1 (z obou stran)
  • Nosná konstrukce - CW/UW50 a větší
  • Opláštění - sádrovláknitá deska fermacell Firepanel A1 tl 3x12,5 mm

Konstrukce 3S01 H2O
  • Bez požární odolnosti
  • Nosná konstrukce - CW/UW50 a větší
  • Opláštění - cementovláknitá deska Powerpanel H2O tl. 12,5 mm
  • Konstrukce do extrémně vlhkých prostor i do exteriéru

Konstrukce 3S32 AE
  • Požární odolnost EI 90 DP1 (z obou stran)
  • Nosná konstrukce - CW/UW50 a větší
  • Opláštění - cementovláknitá deska AESTUVER 2x25 mm
  • Konstrukce do extrémně vlhkých prostor i do exteriéru

 

Proč používat produkty fermacell na výtahové šachty?

  • Mechanická odolnost a stabilita
  • Požární bezpečnost
  • Ochrana zdraví a životního prostředí
  • Bezpečnost při užívání
  • Ochrana proti hluku
  • Úspora energie

Prospekty a technické informace ke stažení


Inspekční certifikát pro výtahové šachty do 2m šířky

Inspekční certifikát pro výtahové šachty do 2,3m šířky

 

×

Napište nám o bezplatný technický návrh s Therm25™

  • ucelený návrh skladby podlahy 
  • včetně akustického a požárního posouzení
  • Therm25 - inovativní systém teplovodního vytápění 
  • 100% suchá pokládka, rychlá a jednoduchá instalace
NA BEZPLATNÝ NÁVRH
×